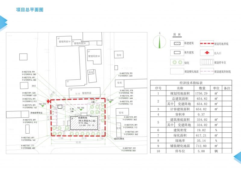
项目名称: 第四师73团六连党建阵地建设项目
类 型:批前公示
建设单位:第四师73团农业和林业草原中心
公示附图:规划总平面图
公示期限:7个工作日
公示日期:2026年3月5日至2026年3月13日
经办单位:第四师自然资源和规划局
咨询电话:0999-8189753 8182946 8189037
附加说明:依据《中华人民共和国土地管理法》《中华人民共和国土地管理法实施条例》《中华人民共和国城乡规划法》《中华人民共和国行政许可法》《自然资源部办公厅关于印发〈自然资源领域基层政务公开标准指引〉的通知》,特此公示。如有意见和建议,请于公示时间内向我局反馈。信访电话:0999-8182946 8189037。


