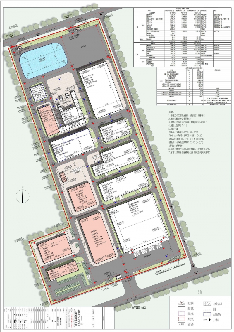
项目名称: 新疆三黍生物新材料有限公司新疆三黍生物基新材料产业园建设项目(一期)
类 型:批前公示
建设单位:新疆三黍生物新材料有限公司
公示附图:规划总平面图
公示期限:7个工作日
公示日期:2026年2月24日至2026年3月3日
经办单位:第四师自然资源和规划局
咨询电话:0999-8189753 8182946 8189037
附加说明:依据《中华人民共和国土地管理法》《中华人民共和国土地管理法实施条例》《中华人民共和国城乡规划法》《中华人民共和国行政许可法》《自然资源部办公厅关于印发〈自然资源领域基层政务公开标准指引〉的通知》,特此公示。如有意见和建议,请于公示时间内向我局反馈。信访电话:0999-8182946 8189037。


