公示说明
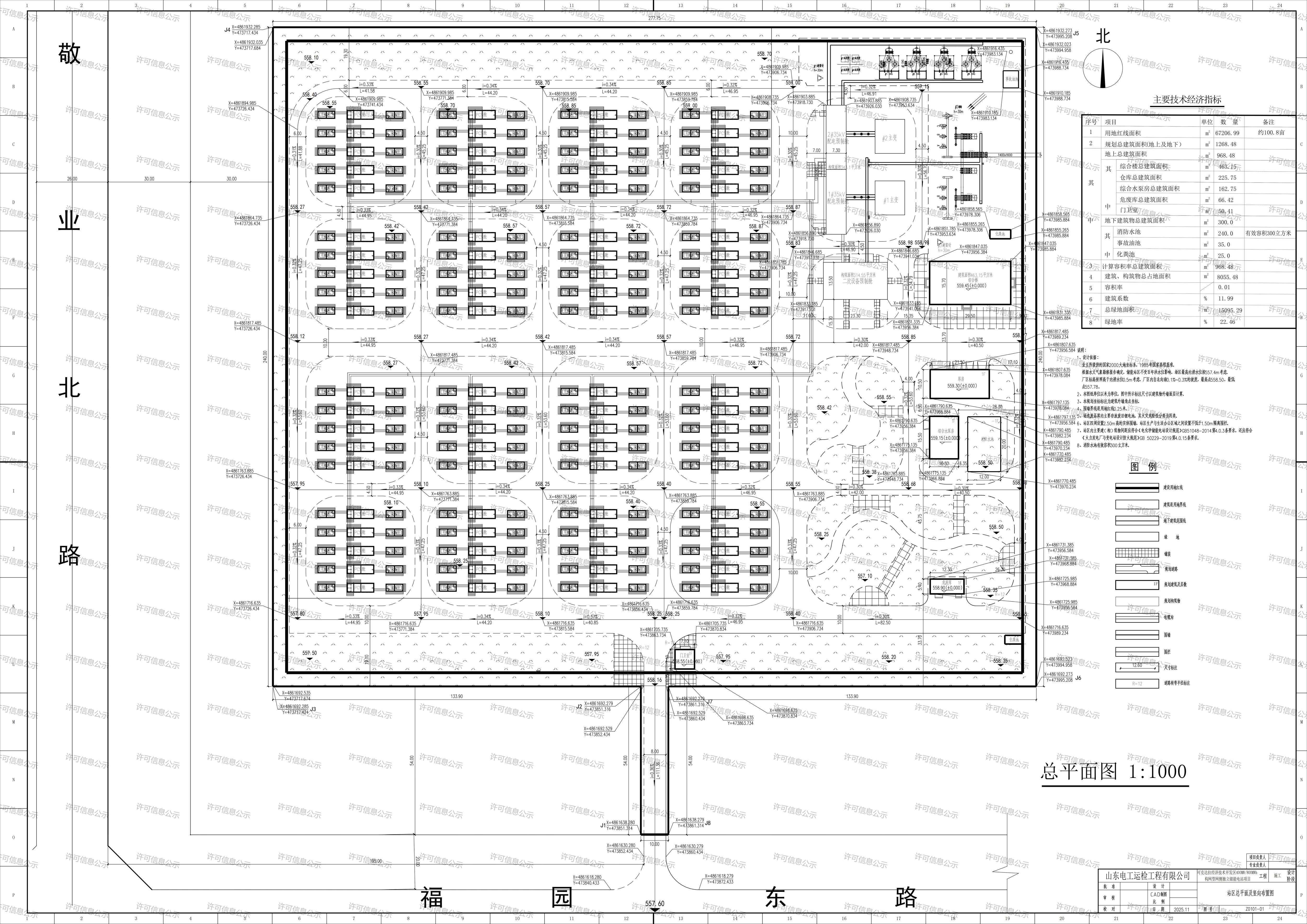
项目名称:可克达拉经济技术开发区400MW/800MWh构网型网侧独立储能电站项目
类 型:批后公告
公示类别:工程规划许可证
建设单位:可克达拉市兴创新能源有限公司
用地位置:可克达拉经开区城西区,南至福园东路,西至敬业北路。
建筑规模:综合楼建筑面积463.15㎡,框架结构,地上1层,建筑高度4.95m;仓库建筑面积225.75㎡,框架结构,地上1层,建筑高度5.85m;综合水泵房建筑面积162.75㎡,框架结构,地上1层,建筑高度5.85m;危废库建筑面积66.42㎡,框架结构,地上1层,建筑高度5.10m;门卫室建筑面积50.41㎡,框架结构,地上1层,建筑高度4.50m;消防水池建筑面积240㎡,地下1层;事故油池建筑面积35㎡,地下1层;化粪池建筑面积25㎡,地下1层;配套建设相关附属设施。
公示附图:详见证书及附图
公示期限:长期
公示日期:2025年1月29日—规划竣工验收
经办单位:第四师可克达拉市自然资源和规划局
咨询电话:0999-8189753 8182946 8189037
附加说明:依据《中华人民共和国土地管理法》《中华人民共和国土地管理法实施条例》《中华人民共和国城乡规划法》《中华人民共和国行政许可法》《兵团建设用地规划许可和建设工程规划许可管理办法(试行)》等有关法律法规,特此公示。如有意见和建议,请于公示时间内向我单位反馈。
信访电话:0999-8182946 8189037




