新疆沂利泓生物新材料科技有限公司50万吨/年农副产品深加工及综合利用项目
批前公示说明
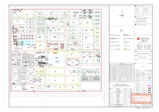
项目名称:新疆沂利泓生物新材料科技有限公司50万吨/年农副产品深加工及综合利用项目
类 型:批前公示
建设单位:新疆沂利泓生物新材料科技有限公司
用地位置:霍尔果斯经济开发区兵团分区
建设规模:本项目建设规模为50万吨玉米收购、储存、淀粉、糖化以及维生素、氨基酸、生物多糖等精深加工生产线,同步建设供电、供汽、供水、污水处理、办公、生活设施。
公示附图:详见规划总平面图
公示期限:7个工作日
公示日期:2025年11月5日至2025年11月13日
经办单位:新疆生产建设兵团第四师自然资源和规划局
咨询电话:0999-3178007
附加说明:依据《中华人民共和国土地管理法》《中华人民共和国土地管理法实施条例》《中华人民共和国城乡规划法》《中华人民共和国行政许可法》《自然资源部办公厅关于印发〈自然资源领域基层政务公开标准指引〉的通知》,特此公示。如有意见和建议,请于公示时间内向我局反馈。
信访电话:0999-3178009


