公示说明
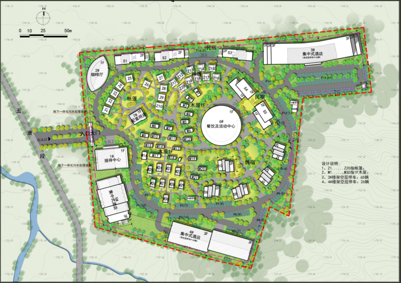
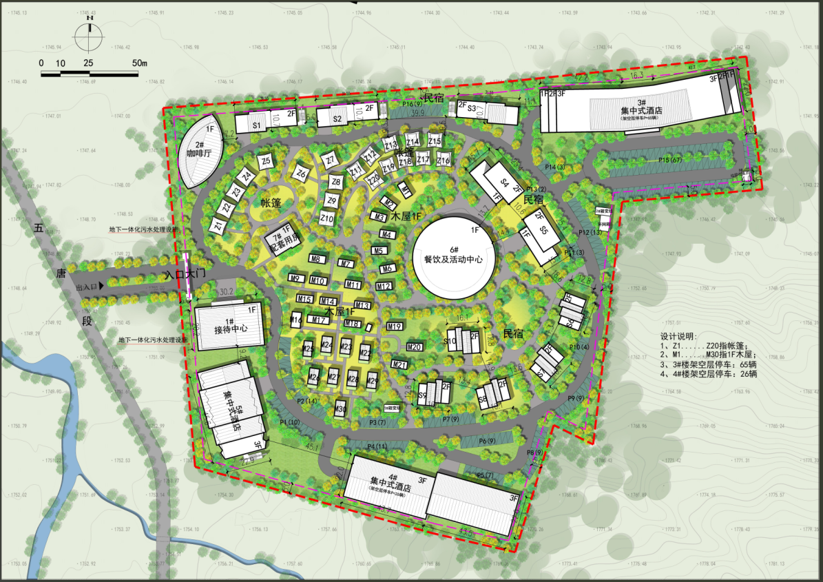
项目名称: 第四师七十九团欣驿唐布拉度假综合体项目建设工程设计方案
类 型:批前公示
公示类别:建设工程设计方案
建设单位:尼勒克县新欣华旅游投资发展有限责任公司
公示期限:7个工作日
公示日期:2025年10月15日至 2025年10月22日
经办单位:第四师可克达拉市自然资源和规划局
咨询电话:0999—8189753 8182946 8189037
附加说明:依据《中华人民共和国土地管理法》、《中华人民共和国土地管理法实施条例》、《中华人民共和国城乡规划法》、《中华人民共和国行政许可法》、《自然资源部办公厅关于印发〈自然资源领域基层政务公开标准指引〉的通知》,特此公示。如有意见和建议,请于公示时间内向我局反馈。 信访电话:0999-8182946 8189037。



