公示说明
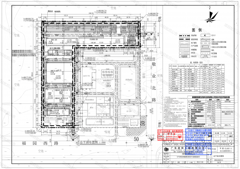
项目名称:年产500吨克林霉素醇化物系列产品附属设施项目
类 型:批后公告
公示类别:工程规划许可证
建设单位:新疆普康生物科技有限公司
用地位置:可克达拉经开区城西区
建筑规模:库房1建筑面积1850.25㎡,钢结构,地上1层,建筑高度8.35m;空压机房建筑面积724.50㎡,钢结构,地上1层,建筑高度10.15m;高压配电室建筑面积550.50㎡,钢结构,地上1层,建筑高度8.35m;低压配电室建筑面积280㎡,钢结构,地上1层,建筑高度8.35m配套建设相关基础设施。
公示附图:详见证书及附图
公示期限:长期
公示日期:2025年9月30日—规划竣工验收
经办单位:第四师可克达拉市自然资源和规划局
咨询电话:0999-8189753 8182946 8189037
附加说明:依据《中华人民共和国土地管理法》《中华人民共和国土地管理法实施条例》《中华人民共和国城乡规划法》《中华人民共和国行政许可法》《兵团建设用地规划许可和建设工程规划许可管理办法(试行)》等有关法律法规,特此公示。如有意见和建议,请于公示时间内向我单位反馈。
信访电话:0999-8182946 8189037




