公示说明
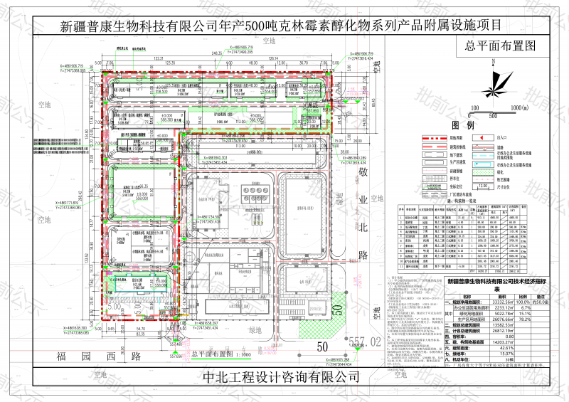
项目名称:年产500吨克林霉素醇化物系列产品附属设施项目
类 型:批前公示
建设单位:新疆普康生物科技有限公司
用地位置:可克达拉经济技术开发区城西区
公示附图:详见规划总平面图及效果图
公示期限:7个工作日
公示日期:2025年9月22日 至 2025年9月29日
经办单位:可克达拉经济技术开发区管理委员会
咨询电话:0999-8189662
附加说明:依据《中华人民共和国土地管理法》《中华人民共和国土地管理法》实施细则、新疆维吾尔自治区实施《中华人民共和国土地管理法》办法、《城乡规划法》《行政许可法》《自然资源部办公厅关于印发〈自然资源领域基层政务公开标准指引〉的通知》等有关法律法规,特此公示。如有意见和建议,请于公示时间内向我单位反馈。
信访电话:0999-8189665


