新明丰科技72条高压化成箔生产线建设
项目规划许可证批后公告说明
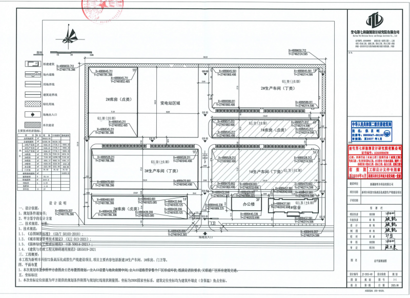
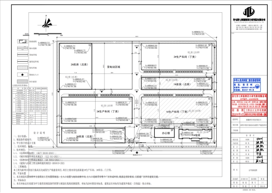
项目名称:新明丰科技72条高压化成箔生产线建设项目
类 型:批后公告
公示类别:建设工程规划许可证公示
建设单位:新疆新明丰科技有限公司
用地位置:霍尔果斯经济开发区兵团分区
建设规模:项目总占地面积 80610.1平方米,总建筑面积51926.95平方米,新建72条高压化成箔生产线及配套工程设施。
公示附图:详见证书及附图
公示期限:长期
公示日期:2025年9月5日至规划验收
经办单位:新疆生产建设兵团第四师自然资源和规划局
咨询电话:0999-8189753
附加说明:依据《中华人民共和国土地管理法》《中华人民共和国土地管理法实施条例》《中华人民共和国城乡规划法》《中华人民共和国行政许可法》《自然资源部办公厅关于印发〈自然资源领域基层政务公开标准指引〉的通知》,特此公示。如有意见和建议,请于公示时间内向我局反馈。
信访电话:0999-8182946



