新能源汽车边境口岸展示交易集散基地建设项目批前公示说明
项目名称:新能源汽车边境口岸展示交易集散基地建设项目
类 型:批前公示
建设单位:霍尔果斯丝路荣腾物流有限公司
用地位置:霍尔果斯经济开发区兵团分区
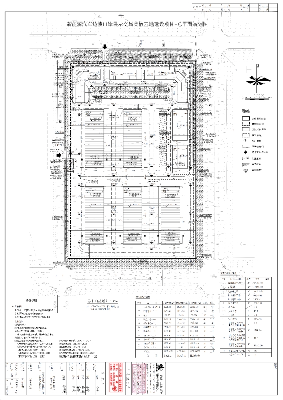
建设规模:项目用地111491.63,平方米,总建筑面积101817.91平方米,建设交易展示服务中心、研发中心、换装库、辅房、公用工程和消防水池等。
公示附图:详见规划总平面图
公示期限:7个工作日
公示日期:2025年8月29日至2025年9月8日
经办单位:霍尔果斯经济开发区兵团分区自然资源和规划建设局
咨询电话:0999-3178007
附加说明:依据《中华人民共和国土地管理法》《中华人民共和国土地管理法实施条例》《中华人民共和国城乡规划法》《中华人民共和国行政许可法》《自然资源部办公厅关于印发〈自然资源领域基层政务公开标准指引〉的通知》,特此公示。如有意见和建议,请于公示时间内向我局反馈。
信访电话:0999-3178009


