霍尔果斯经济开发区兵团分区(自贸试验区)企业服务中心(一期)建设项目规划许可证批后公告说明
项目名称:霍尔果斯经济开发区兵团分区(自贸试验区)企业服务中心(一期)建设项目
类 型:批后公告
公示类别:建设工程规划许可证公示
建设单位:霍尔果斯经济开发区兵团分区正兴投资开发有限公司
用地位置:霍尔果斯经济开发区兵团分区
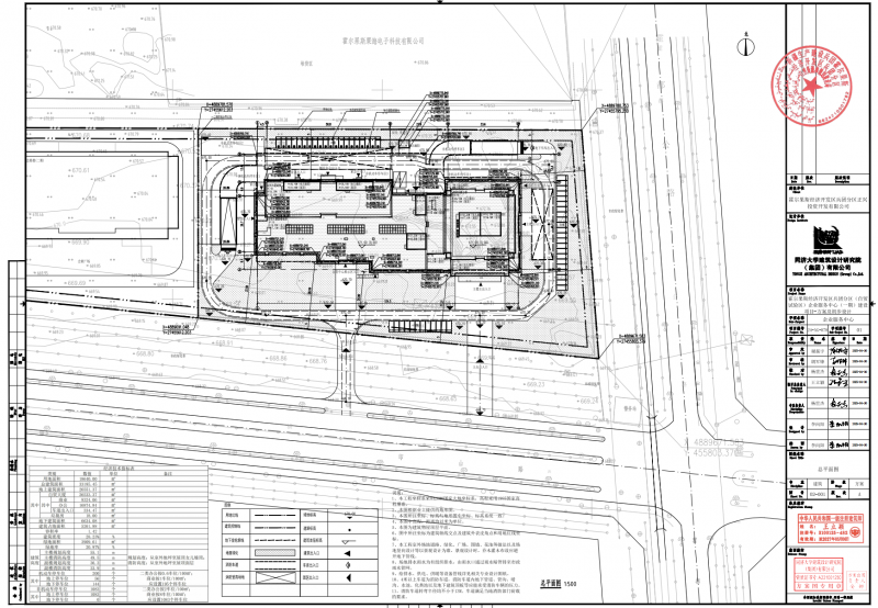
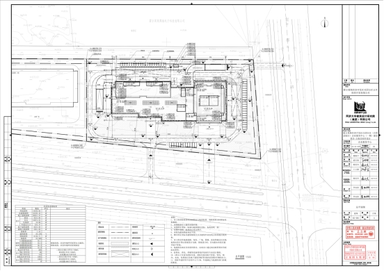
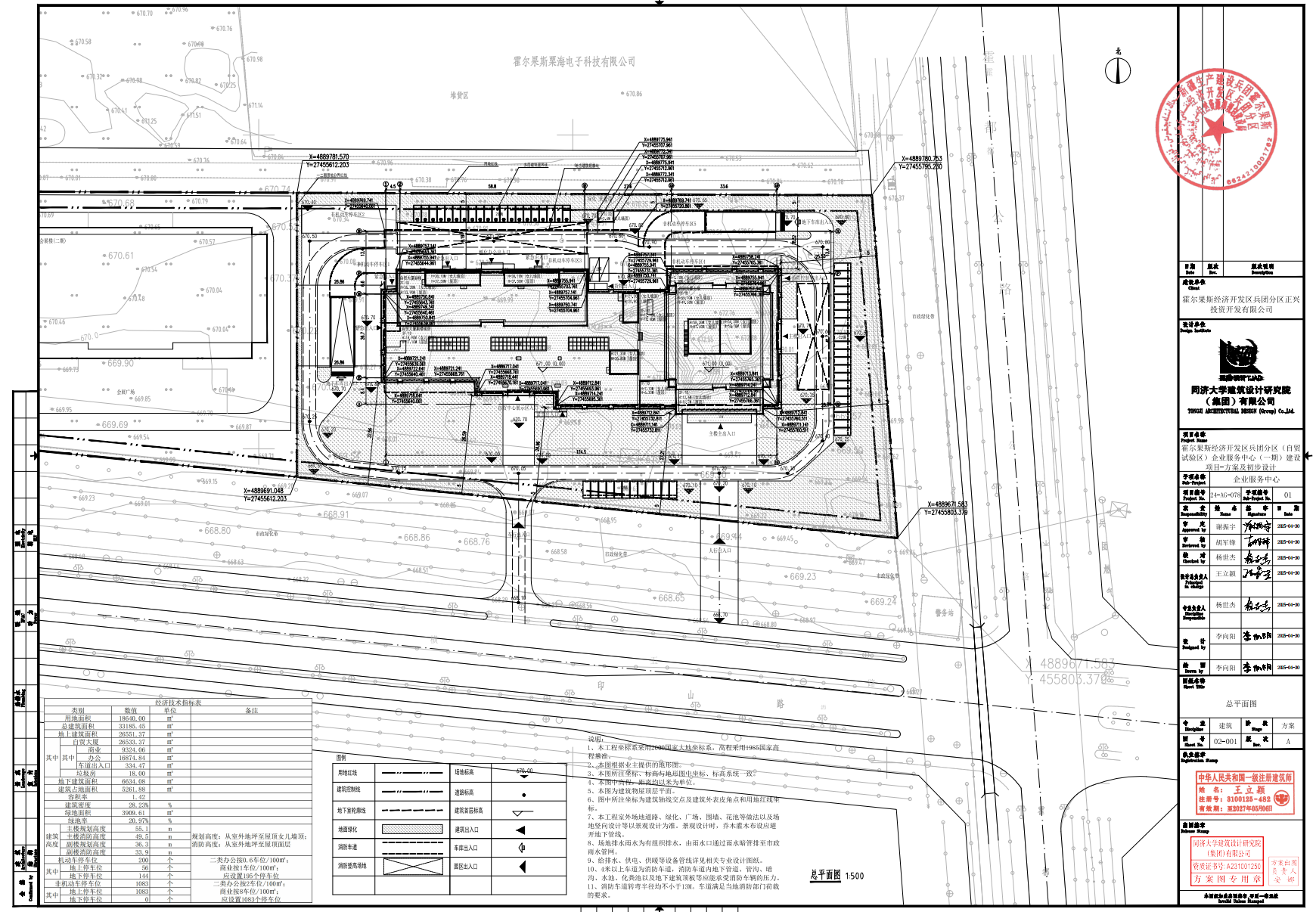
建设规模:用地面积 40679.73平方米(61.02亩),总建筑面积73550m。一期占地面积18640平方米,总建筑面积33185.45平方米,地上建筑面积26551.37平方米地下建筑面积6634.08平方米。
公示附图:详见证书及附图
公示期限:长期
公示日期:2025年8月5日至规划验收
经办单位:霍尔果斯经济开发区兵团分区自然资源和规划建设局
咨询电话:0999-3178007
附加说明:依据《中华人民共和国土地管理法》《中华人民共和国土地管理法实施条例》《中华人民共和国城乡规划法》《中华人民共和国行政许可法》《自然资源部办公厅关于印发〈自然资源领域基层政务公开标准指引〉的通知》,特此公示。如有意见和建议,请于公示时间内向我局反馈。
信访电话:0999-3178009



