公示说明
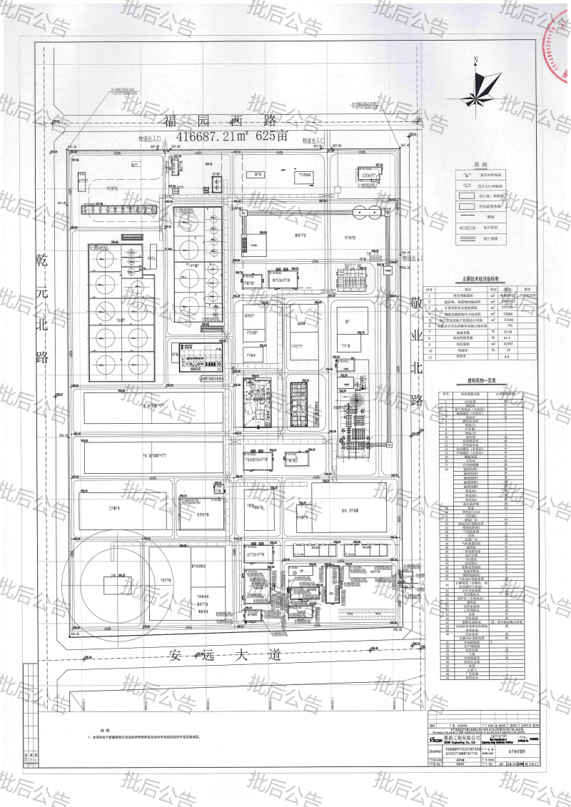
项目名称:中溶新能源年产180万吨精细化学品及4000吨电池燃料氢多联产项目(一期)
类 型:批后公告
公示类别:工程规划许可证
建设单位:中溶新能源(可克达拉)有限公司
用地位置:可克达拉市敬业北路1号
建筑规模:中央控制室建筑面积2288.45㎡,框架结构,地上1层,建筑高度10.7m;生产调度楼建筑面积1433.79㎡,框架结构,地上3层,建筑高度13.25m;中央化验室建筑面积2549.29㎡,框架结构,地上3层,建筑高度15.24m;综合办公楼建筑面积7340.31㎡,框架结构,地上5层,建筑高度23.8m;食堂建筑面积2661.93㎡,框架结构,地上2层,建筑高度10.85m;人流门建筑面积36.52㎡,框架结构,地上1层,建筑高度4.9m;供销中心建筑面积2143.02㎡,框架结构,地上3层,建筑高度11.75m。配套建设相关基础设施。
公示附图:详见证书及附图
公示期限:长期
公示日期:2025年5月27日—规划竣工验收
经办单位:第四师可克达拉市自然资源和规划局
咨询电话:0999-8189662 8189753 8182946
附加说明:依据《中华人民共和国土地管理法》《中华人民共和国土地管理法实施条例》《中华人民共和国城乡规划法》《中华人民共和国行政许可法》《兵团建设用地规划许可和建设工程规划许可管理办法(试行)》等有关法律法规,特此公示。如有意见和建议,请于公示时间内向我局反馈。
信访电话:0999-8182946 8189037




