公示说明
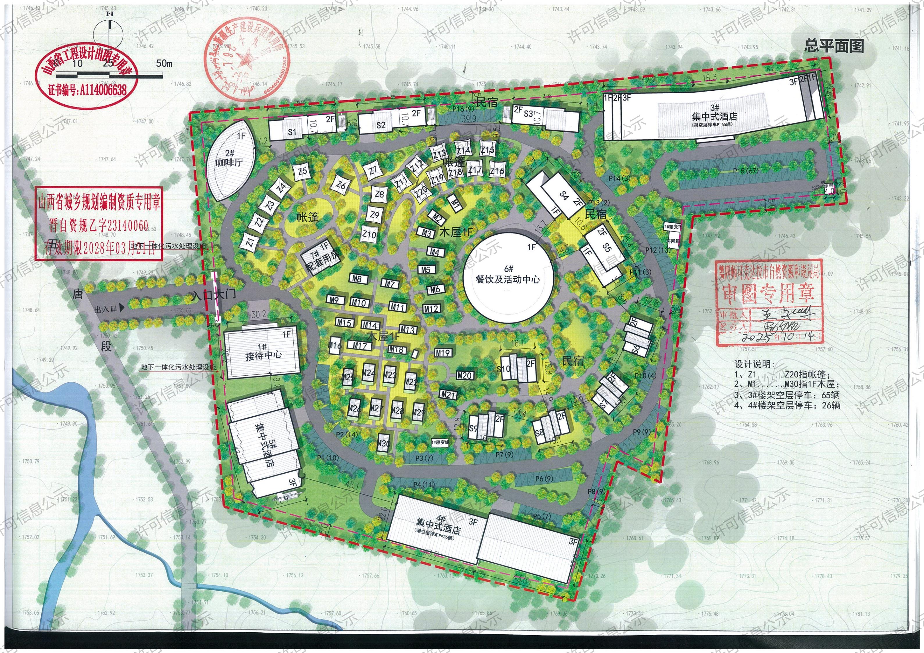
项目名称: 欣驿唐布拉度假综合体项目(一期二期)_一期
类类型型:批后公告
公示类别:建设工程规划许可证
建设单位:尼勒克县新欣华旅游投资发展有限责任公司
用地位置:67团2连
建筑规模:总建筑面积7799.14平方米。
公示附图:详见证书及附图
公示期限:长期
公示日期:2026年1月29日至规划竣工验收
经办单位:第四师可克达拉市自然资源和规划局
咨询电话:0999—8189753 8182946 8189037
附加说明:依据《中华人民共和国土地管理法》《中华人民共和国土地管理法实施条例》《中华人民共和国城乡规划法》《中华人民共和国行政许可法》《自然资源部办公厅关于印发〈自然资源领域基层政务公开标准指引〉的通知》,特此公示。如有意见和建议,请于公示时间内向我局反馈。信访电话:0999—8182946 8189037。





