公示说明
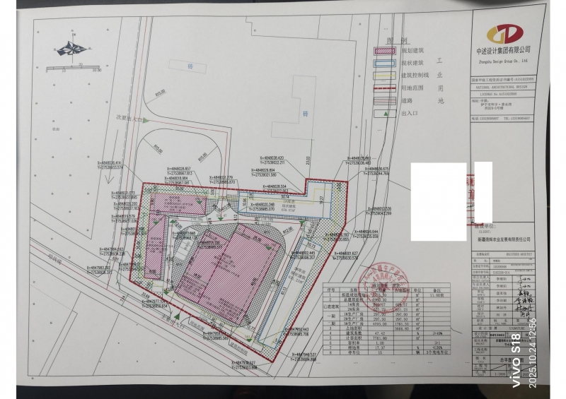
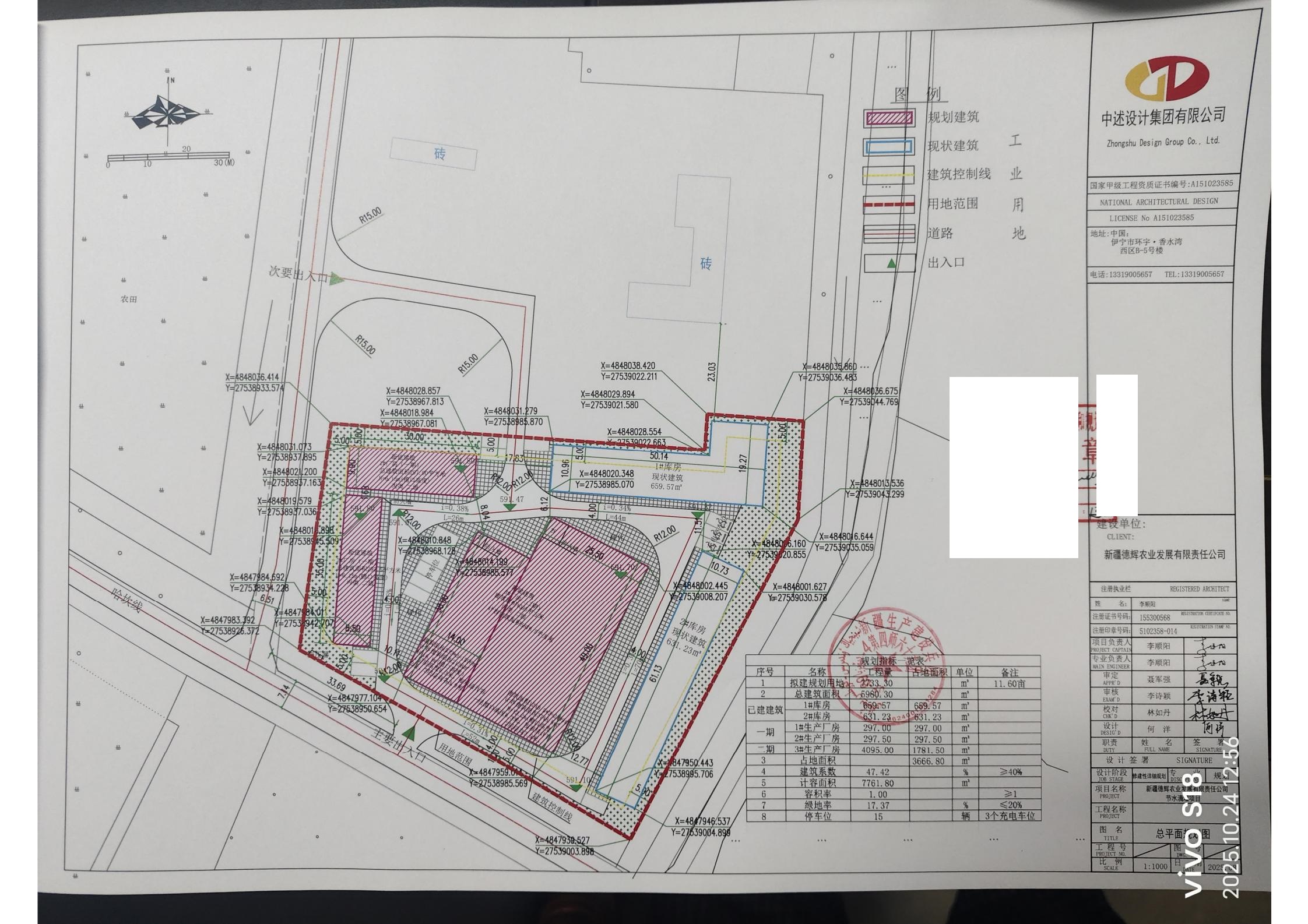
项目名称:新疆德辉农业发展有限责任公司节水滴灌项目(一期)
类类型型:批后公告
公示类别:工程规划许可证
建设单位:范吉
用地位置:69团11连
建筑规模:总建筑面积594.5平方米。
公示附图:详见项目规划总平面图
公示期限:长期
公示日期:2025年10月30日至规划竣工验收
经办单位:第四师可克达拉市自然资源和规划局
咨询电话:0999—8189753 8182946 8189037
附加说明:依据《中华人民共和国土地管理法》《中华人民共和国土地管理法实施条例》《中华人民共和国城乡规划法》《中华人民共和国行政许可法》《自然资源部办公厅关于印发〈自然资源领域基层政务公开标准指引〉的通知》,特此公示。如有意见和建议,请于公示时间内向我局反馈。信访电话:0999—8182946 8189037。


