公示说明
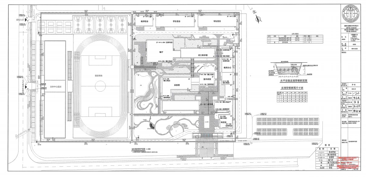
项目名称:第四师可克达拉市第二中学建设项目
类 型:批后公示
公示类别:工程规划许可证公示
建设单位:新疆生产建设兵团第四师教育资助和后勤服务中心
用地位置:第四师可克达拉市
建筑规模:计容建筑面积64268.57平方米,其中初一、初二教学楼7352.53平方米、初三教学楼5497.23平方米、实验楼4004.59平方米、图书馆1103.39平方米、综合楼2120.22平方米、科技馆1001.54平方米、食堂5675.34平方米、1#学生宿舍6679.88平方米、2#学生宿舍6617.59平方米、教师宿舍2752.49平方米、文体中心20126.08平方米、值班室199.54平方米、连廊145.35平方米、看台992.8平方米;及配套绿化、硬化、大门、运动场、室外管网等基础设施。
公示附图:详见项目规划总平面图
公示期限:7日
公示日期:2023年11月27日至 2023年12月03日
经办单位:第四师可克达拉市自然资源和规划局
咨询电话:0999—8189753 8182946 8189037
附加说明:依据《中华人民共和国土地管理法》、《中华人民共和国土地管理法》实施细则、新疆维吾尔自治区实施《中华人民共和国土地管理法》办法、《城乡规划法》、《行政许可法》、《新疆维吾尔自治区城乡规划公示办法》等有关法律法规,特此公示。如有意见和建议,请于公示时间内向我局反馈。 信访电话:0999-8182946 8189037。








